Area Deurne
Boterlaarbaan 323
2100 Deurne
+32 3 284 60 60
info@area.be
BTW BE 0719.712.482
Deze karaktervolle woning is gelegen nabij het centrum van Merksem, vlakbij diverse scholen, winkels en het openbaar vervoer. De autosnelweg is op nog geen 5 minuten rijden. Op fietsafstand van het Bouckenborgh en Runcvoortpark.
Grootste troeven:
- Instapklaar
- Authentieke elementen, moulures, hoge plafonds,...
- Tuin 115m² met veel privacy en Terras
- Conforme elektrische keuring
- 6 of meer slaapkamers mogelijk
Indeling:
-Kelder
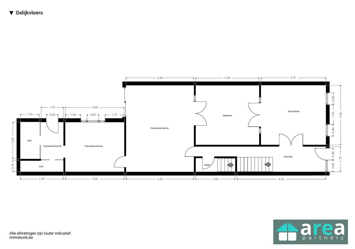
-GVL: Het gelijkvloers bestaat naast de inkomhal (15m²) uit meerdere polyvalente ruimtes (10m², 13m², 27m², 18m² & 17m²). Deze kunnen zowel een gewone functie (woonkamer, slaapkamers,...) als een kantoorfunctie hebben.
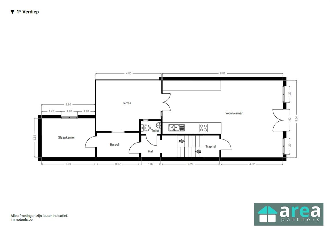
-V1: Lichtrijke leefruimte (44m²) met aansluitend een geïnstalleerde ruime keuken (vaatwasser, oven, lavabo,...). De living biedt toegang tot het terras (westgericht, 18m²). Achteraan hebben we een tussenkamer/burearuimte (6m²) via dewelke we de eerste slaapkamer (12m²) betreden. Tevens is er een apart toilet.
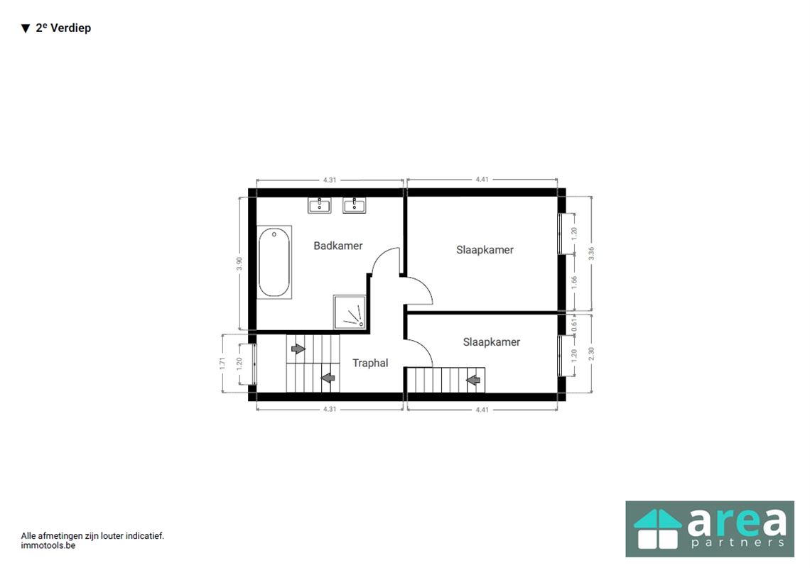
-V2: 2 slaapkamers van 15m² en 11m², alsook een grote badkamer (15m²) met douche, ligbad, wc en dubbele lavabo.
-V3: zolderkamer 32m².
Voor meer informatie kan u terecht bij Area Partners. INFO@area.be of 03/284.60.60
