Deze charmante ééngezinswoning bevindt zich in de opkomende buurt nabij Park Spoor Noord en de Stuivenbergsite die nog een make-over krijgt. Omwille van de centrale ligging ben je op wandelafstand van het hippe Eilandje, alsook het groene Park Spoor Noord. In de nabijheid van winkels, scholen en openbaar vervoer.
Ideaal om er zelf in te wonen of als investering (mogelijke huurprijs van 1000/mnd)!
Grootste troeven:
-Centrale locatie
-Gunstig EPC (B)!
-Geïsoleerd dak + dubbel glas
-Verschillende mogelijkheden
Indeling:
-Kelder: ideaal voor stockage
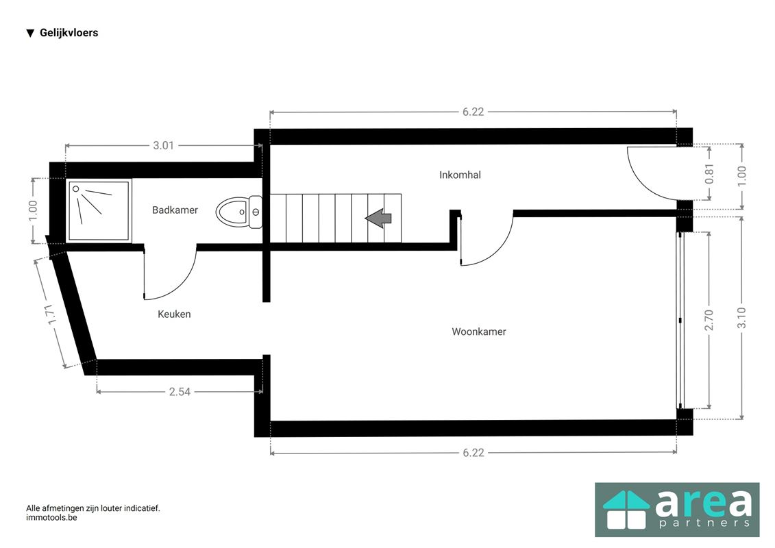
-GLVL: Inkomhal met aansluitend de gastenliving (20m²). Hierachter bevind zich een
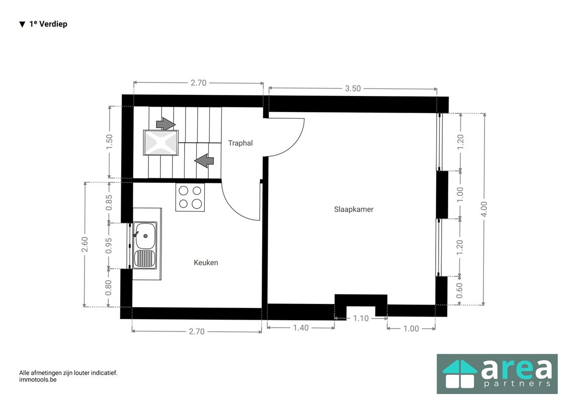
-V1: Vooraan de 2de living met aansluitend de geïnstalleerde keuken (7m²).
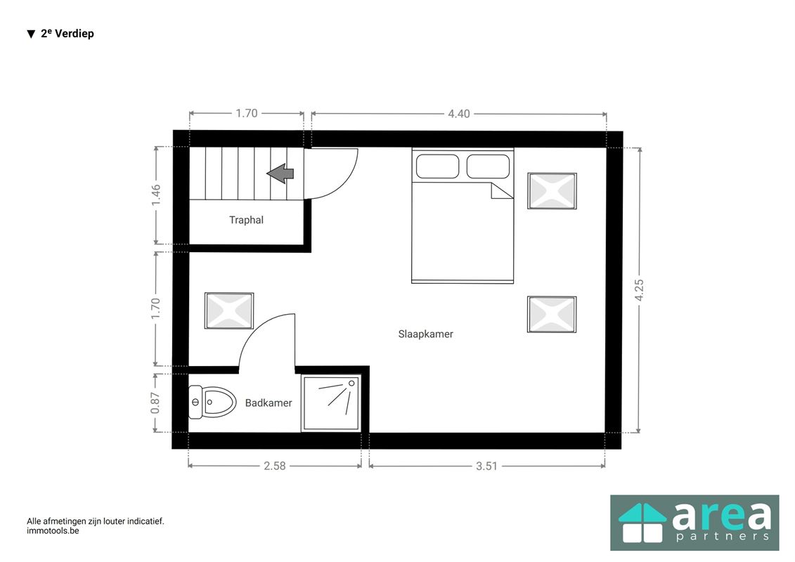
-V2: Hier bevindt zich de grootste slaapkamer (20m²) alsook de 2de badkamer (2,5m²) met douche en WC.
Voor meer informatie kan u terecht bij Area Partners. INFO@area.be of 03/284.60.60





























