Achter deze prachtige, zorgvuldig gereinigde gevel (jaren 30 met originele houten kroonlijsten vinden we een volledig gerenoveerd duplex appartement terug. Het betreft een 2 slaapkamer appartement op het 3de en 4de verdiep in een kleinschalig gebouw in het hippe en gegeerde Zurenborg. Vlakbij de Dageraadplaats, aan gezellige horecagelegenheden alvast geen gebrek! De ligging zorgt voor een goede bereikbaarheid met het openbaar vervoer & er is een vlotte verbinding naar het centrum van Antwerpen of de Ring.
Let wel: renders zijn louter informatief, ondertussen worden nog de nodige puntjes op de i gezet in het appartement!
Grootste troeven:
-Gelegen op toplocatie!
-Kwalitatieve totaalrenovatie, 1ste ingebruikname!
-Zéér gunstig EPC A!
-Incl. kelderberging
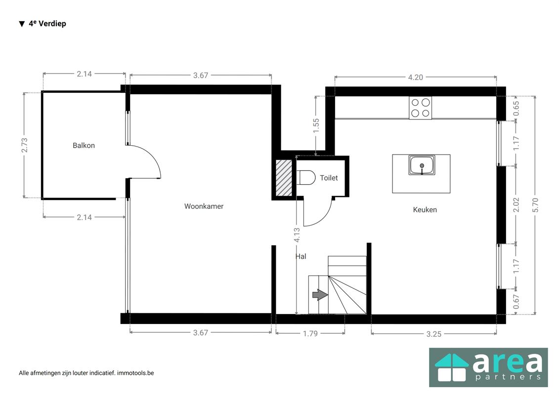
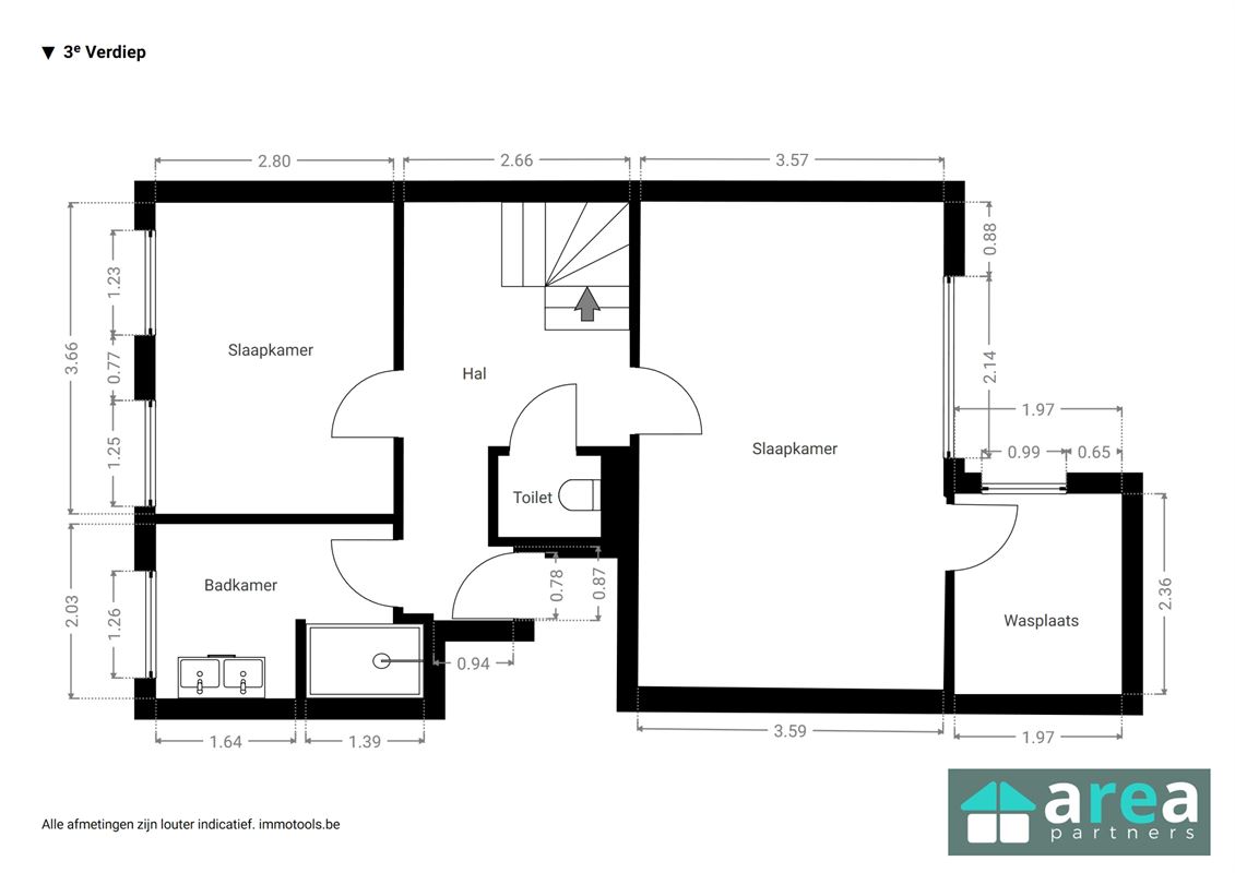
Indeling:
-V3: Hier treffen we de twee slaapkamers (20m² & 10m²). De master bedroom is bijzonder ruim en biedt rechtstreekse toegang tot een extra ruimte (5m²) die perfect kan dienen als wasplaats of bureau, afhankelijk van benodigdheden. Daarnaast is er een moderne, kwalitatieve badkamer (6m²) voorzien van een leuke inloopdouche. De inkomhal biedt toegang tot het apart gastentoilet.
-V4: Het bovenste verdiep wordt gedeeltelijk ingenomen door de lichtrijke leefruimte (22m²) met doorgang naar het noordwestgericht terras (6m²). De open leefkeuken (22m²) is volledig uitgerust en beschikt over een stijlvol keukeneiland. Tot slot beschikt het verdiep over een 2de toilet.
Voor meer informatie kan u terecht bij Area Partners: info@area.be of 03/284.60.60



































