In een bruisende bruisende buurt, centraal gelegen in een commerciële straat, vinden we deze handelswoning terug. Het pand omvat op het gelijkvloers een goed draaiende zaak en daarboven de woonst. Thans wordt het woongedeelte gebruikt als extra stockageruimte.
Grootste troeven
-Toplocatie in commerciële straat
-Huidig verhuurd aan stabiele huurder
-Ideaal als investering
-Zelden of nooit leegstand
Indeling:
-GLVL (95m²): op het gelijkvloers bevindt zich op heden een winkel met een oppervlakte van 95m². Het betreft een commerciële ruimte met aan voorzijde de toonzaal en achterzijde de kassa. Verder is er nog een traphal naar het 1ste verdiep.
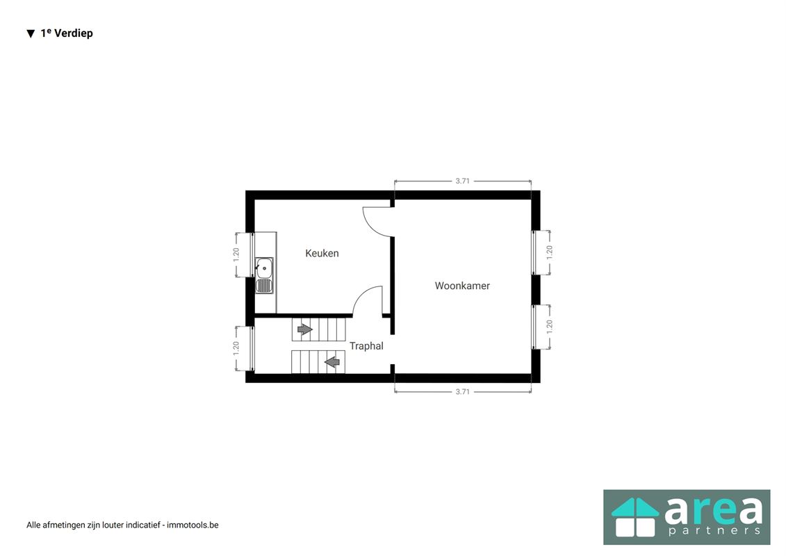
-V1 (35m²): op het 1ste verdiep bevinden zich 2 kamers (17m² & 13m²), waarvan de voorste ruimte gebruikt kan worden als living en achterste ruimte als keuken.
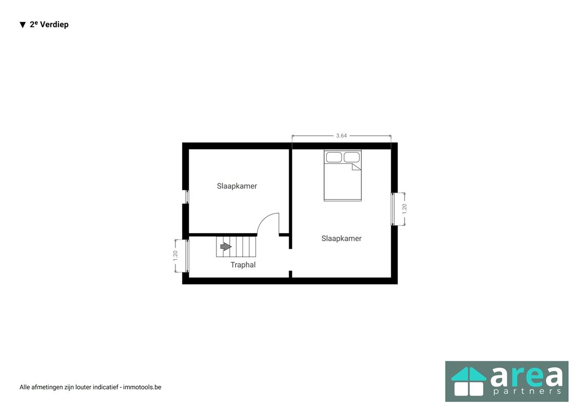
-V2 (35m²): op het 2de verdiep bevinden zich terug 2 ruime kamers (17m² & 13m²), waarvan de voorste ruimte gebruikt kan worden als slaapkamer en achterste ruimte als badkamer.
Voor meer informatie kan u terecht bij Area Partners. Info@area.be of 03/284.60.60.
























