Area Deurne
Boterlaarbaan 323
2100 Deurne
+32 3 284 60 60
info@area.be
BTW BE 0719.712.482
Dit instapklaar 2 slaapkamer appartement op het 1ste verdiep maakt deel uit van een kleinschalig gebouw bestaande uit 4 units zonder lift. Het is gelegen in een opkomende en bruisende buurt in Antwerpen Noord, dichtbij het Park Spoor Noord alsook verschillende commerciële straten. Omwille van de centrale ligging en het openbaar vervoer, ben je zo in het centrum van Antwerpen!
Ideaal om er zelf in te trekken of als investering!
Grootste troeven:
-Zeer centrale doch rustige locatie
-Verhuurde unit (huidige huuropbrengsten €609,90/mnd)
-Rendement van 3,91%! (aankoopkost incl. registratie!)
-Zéér gunstig EPC (108kWh/m²/jaar) + conforme elektrische keuring!
-Geïsoleerd dak + achtergevel!
-Aparte meters (water, gas & elektriciteit)
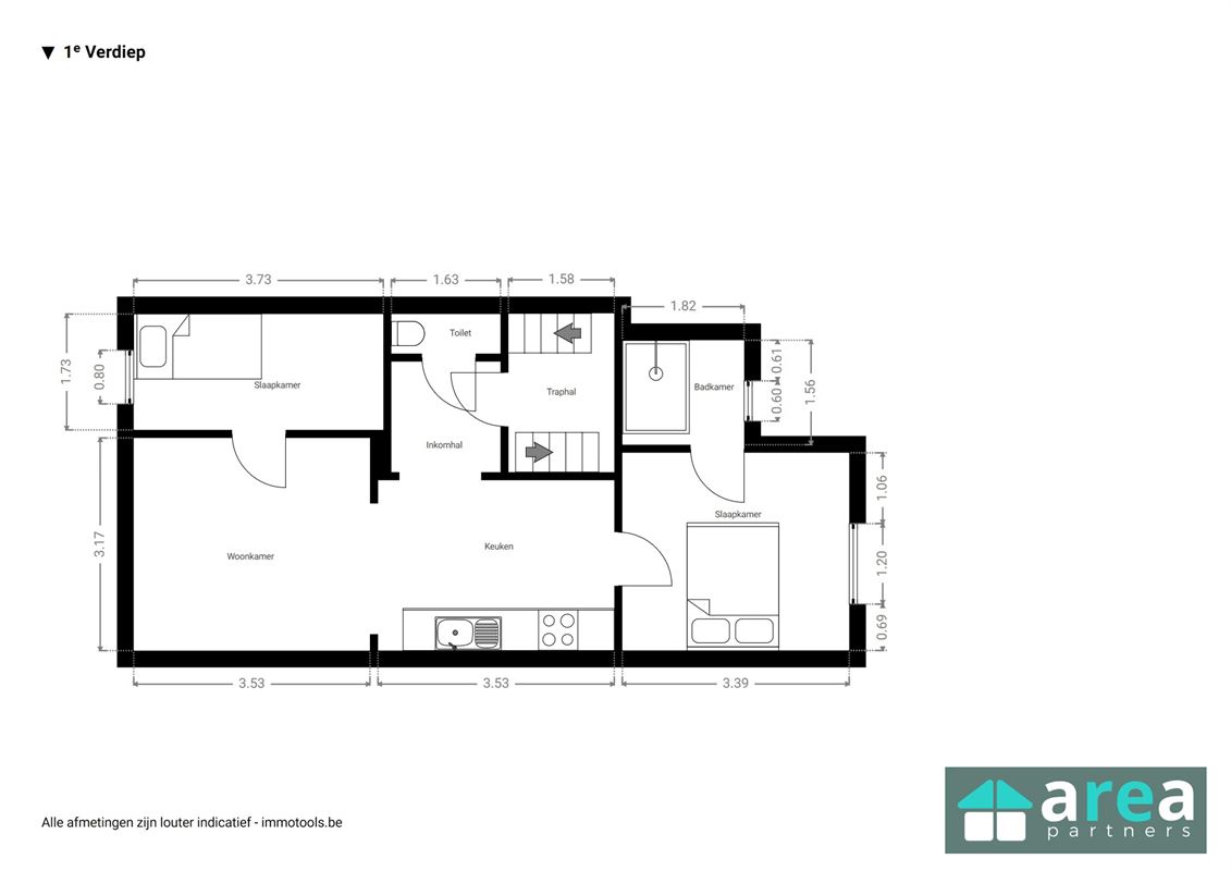
Indeling:
Lichte living (12 m²) met aanpalend een kleinere slaapkamer (7 m²). Aansluitend aan de leefruimte bevindt zich de volledig geïnstalleerde keuken (9 m²). Achter de keuken ligt de tweede, ruime slaapkamer (12 m²) met aansluitend de badkamer (3 m²), uitgerust met een douche. Vanuit de inkomhal is er bovendien toegang tot een apart toilet.
Voor meer informatie kan u terecht bij Area Partners. INFO@area.be of 03/284.60.60
