Deze ruime opbrengsteigendom bevindt zich op de grens van Borgerhout & A’pen Noord. Het betreft een handelspand, thans ingedeeld als 3 studio’s, 1 appartement met 2slpk en een ruim magazijn met koer. Het is gelegen dichtbij de gegeerde buurt rond de Kerkstraat! Op wandelafstand van het centrum van Antwerpen! Met het openbaar vervoer en de nabijheid van het centraal station maakt dit een goed bereikbare locatie.
Grootste troeven:
-Ruim pand op centrale locatie
-Veel potentieel: te renoveren/ op te frissen naar eigen smaak
-Aparte meters: 5x water-, gas- & elektriciteitsmeters
-Zelden of nooit leegstand
Indeling:
-GLVL (studio voorkant 40m²): Living (20m²) met aansluitend eetkamer (13m²). Vervolgens keuken (4m²) met daarnaast de badkamer (3m²).
-GLVL (Magazijn 120m²): Ruim magazijn met 4 polyvalente ruimtes (22m², 16m², 15m² & 15m²), keuken (3m²) en badkamer (5m²). Tot slot is er nog een koer (5m²).
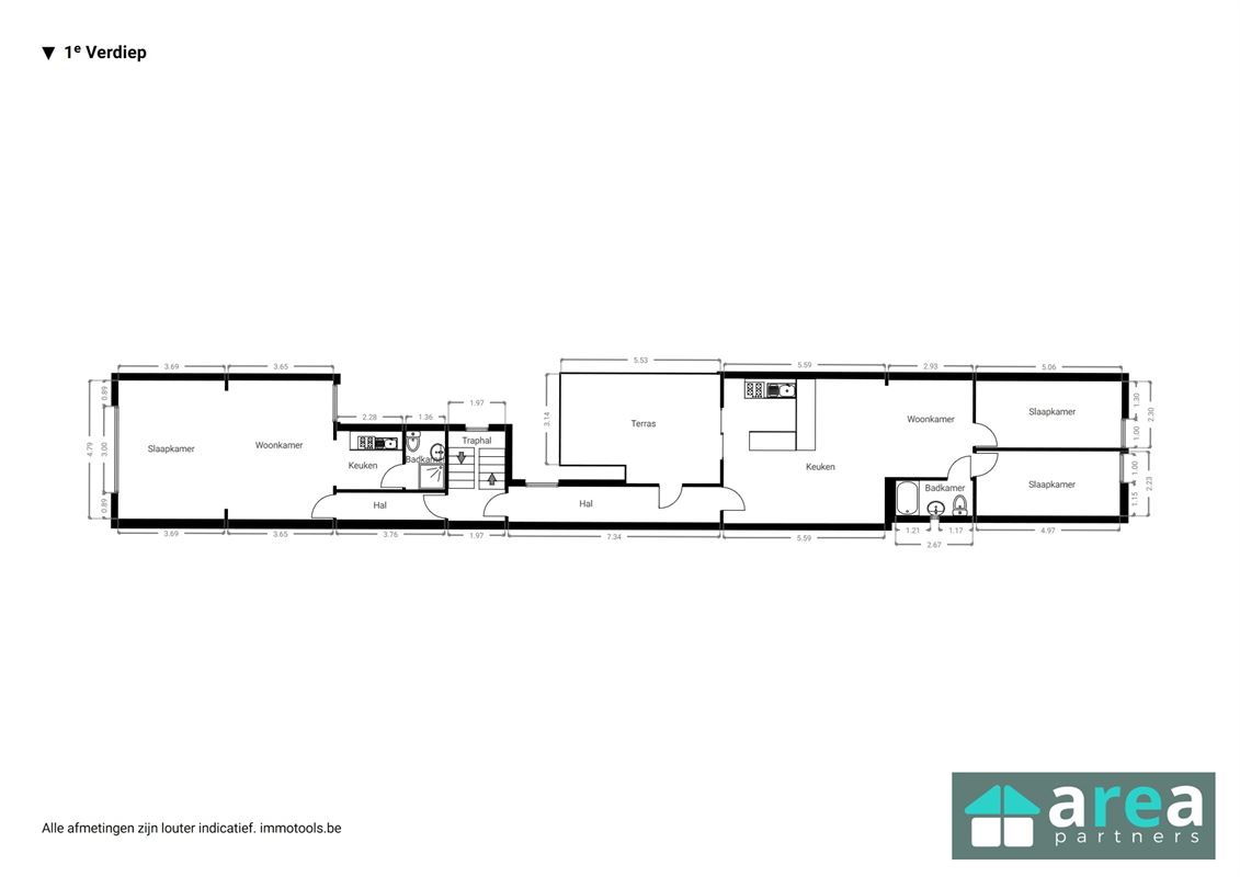
-V1 (studio voorkant 50m²): Slaapkamer (18m²) met aansluitend de living (18m²). Vervolgens keuken (6m²) met daarnaast de badkamer (4m²).
-V1 (appartement achterkant (70m²): Living met open keuken (samen 34m²) met toegang tot het terras (17m²). Verder is er een badkamer (5m²), achteraan 2 ruime slaapkamers (12m² & 11m²).
-V2 (studio 50m²): Living (20m²) met daarnaast de slaapkamer (15m²). Vervolgens keuken (5m²) met aansluitend de badkamer (2m²).
Tot slot is er nog een ruime kelder (55m²).
Voor meer informatie kan u terecht bij Area Partners: Info@area.be of 03/284.60.60

























































