Deze interessante investering bevindt zich in de opkomende en hippe buurt ’t Dam. Het betreft een woonhuis (vergund en gekend als gezinswoning), thans ingedeeld als 4 studio’s in een doodlopende straat. Omwille van de centrale ligging ben je op wandelafstand van het hippe Eilandje, alsook het groene Park Spoor Noord. In de nabijheid van winkels, scholen en openbaar vervoer.
Kortom, een leuke investeringsopportuniteit met gegarandeerd rendement!
Grootste troeven:
-Centrale locatie in toffe buurt!
-Verhuurde units (huidige huuropbrengsten €1830/mnd)
-TOPRENDEMENT van 8,04%! (aankoopkost incl. registratie!)
-Zelden of nooit leegstand
-Geïsoleerd dak en achtergevel
Indeling:
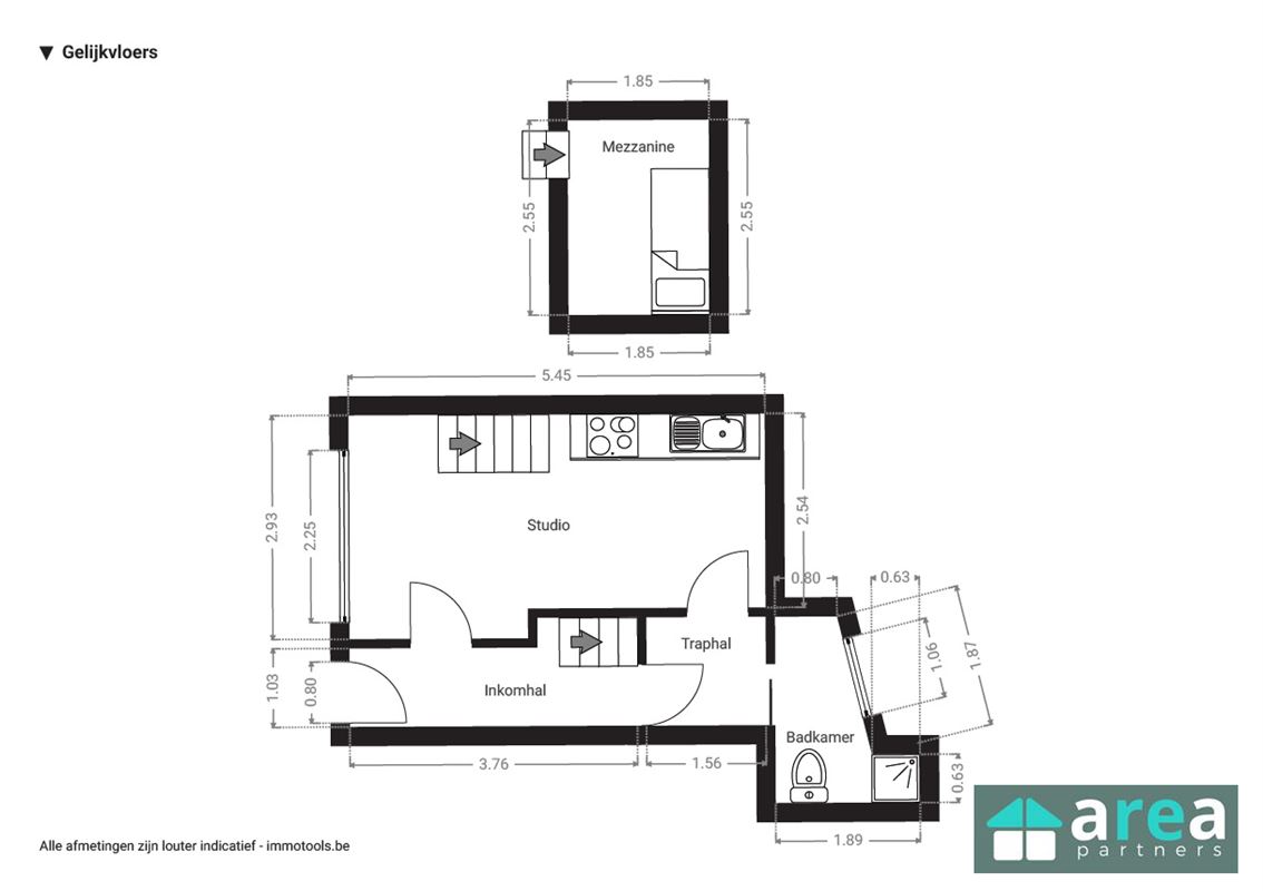
-GLVL (studio 28m²): living met open keuken (samen 16m²) met doorgang naar de mezzanine (5m²). tot slot is er nog een badkamer (5m²) met douche & WC.
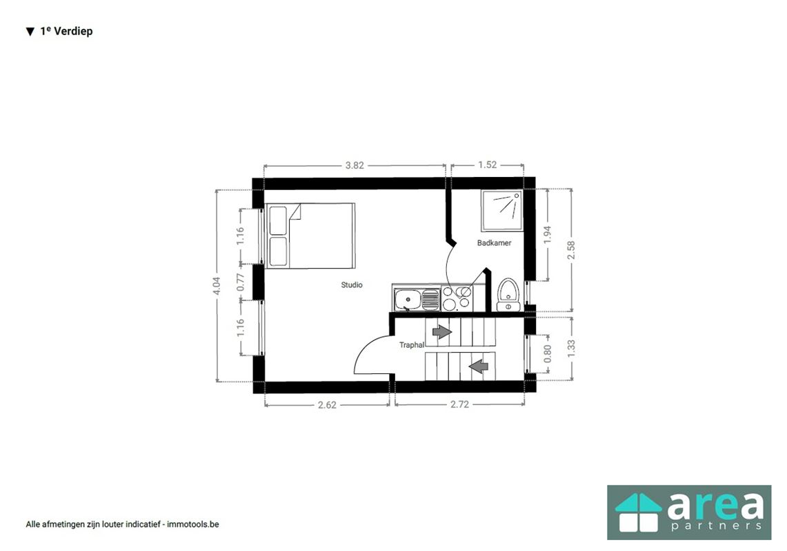
-V1 (studio 20m²): living met open keuken (samen 17m²) met aansluitend de badkamer (3m²) met douche & WC.
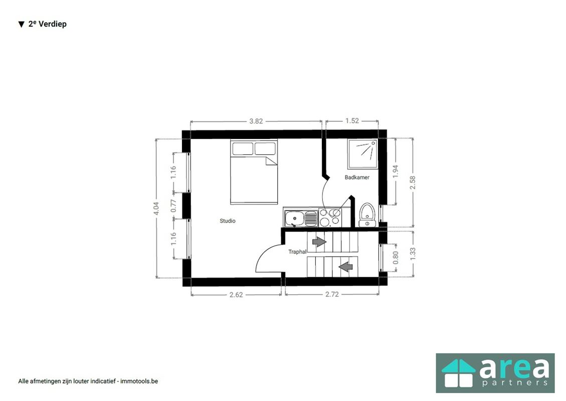
-V2(studio 20m²): living met open keuken (samen 17m²) met aansluitend de badkamer (3m²) met douche & WC.
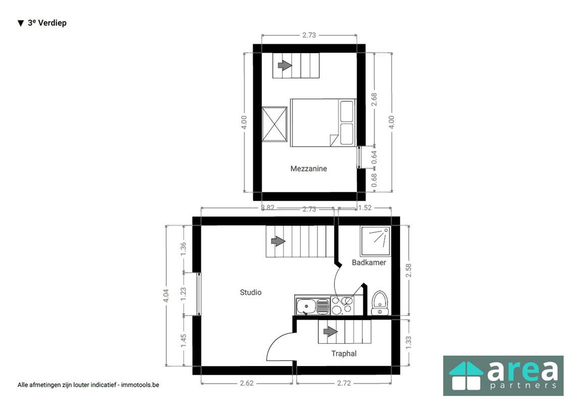
-V3 (studio 33m²): living met open keuken (samen 17m²) met doorgang naar de mezzanine (11m²). Aansluitend bevindt zich de badkamer (3m²) met douche & WC.
Voor meer informatie kan u terecht bij Area Partners. INFO@area.be of 03/284.60.60



































