Uitzonderlijke villa met burelen, magazijn en verwarmd zwembad!
Wonen en werken op één terrein!
Deze volledig gerenoveerde villa met bedrijfsmagazijn en burelen combineert luxueus wonen met professionele mogelijkheden. Perfect voor de bedrijfsleider of zelfstandige die wonen en werken op één terrein wil combineren, in een praktisch, stijlvol en energiezuinig gebouw. Het is een unieke opportuniteit om werk en privé te combineren op een strategische locatie. Hier woont, werkt én ontspant u op één domein met alle ruimte om uw onderneming verder te laten groeien.
Grootste troeven
- Meer dan 500 m² bewoonbare oppervlakte, volledig vernieuwd met hoogwaardige materialen
- Inpandige, doch afzonderlijke burelen ideaal als kantoor, ontvangstruimte of praktijk en met eigen sanitair en keuken.
- Groot magazijn/bedrijfsgebouw (240m²) achteraan op het terrein met ruime poorttoegang
- Mogelijkheid tot uitbreiding magazijn tot 1000 m² kan worden gebouwd (binnen geldende voorschriften, zie BPA)
- Verwarmd buitenzwembad met zonneterras en onderhoudsvriendelijke tuin
- Energiezuinige woning met EPC-label B voorzien van 15kWh zonnepanelen + batterij van 10kWh
- Regenput (10.000l) en grondwaterpomp aanwezig
- Ruime parkeergelegenheid op eigen terrein
- Gelegen in een industriezone met uitstekende bereikbaarheid via belangrijke invalswegen (E34 op 5 minuten rijden)
- Instapklaar: recente, grondige renovatie met oog voor comfort en detail
Indeling
- Kelder van 28m²
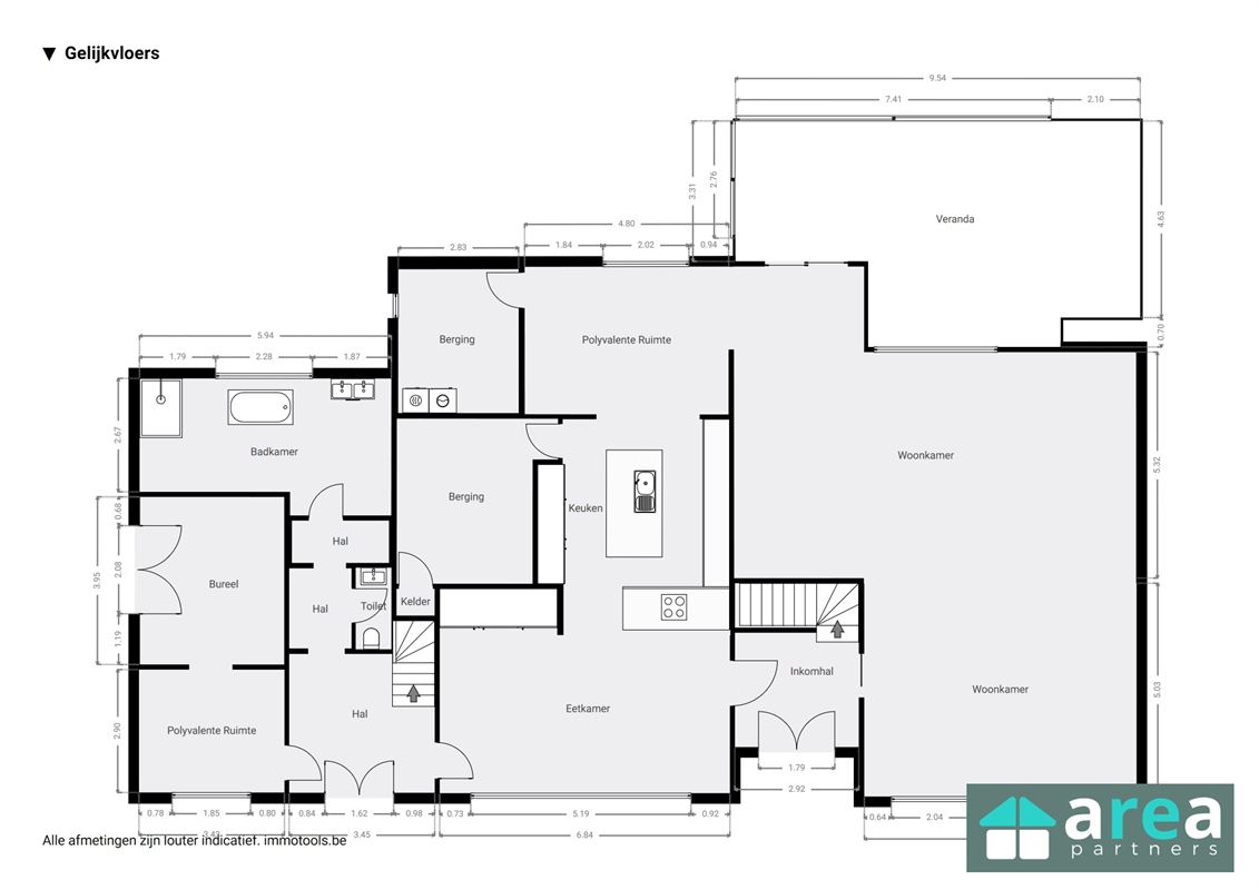
- Gelijkvloers van 260m²: Inkomhal met toegang tot enerzijds de ruime living (+100m²) en anderzijds de ruime eetkamer met luxe keuken (45m²). Hal met toegang tot gastentoilet, grote privé bureel met aparte ingang en achteraan een ruime badkamer met ligbad, dubbele lavabo en inloopdouche. Aan de keuken is er een ruime berging en wasplaats met aansluitingen.
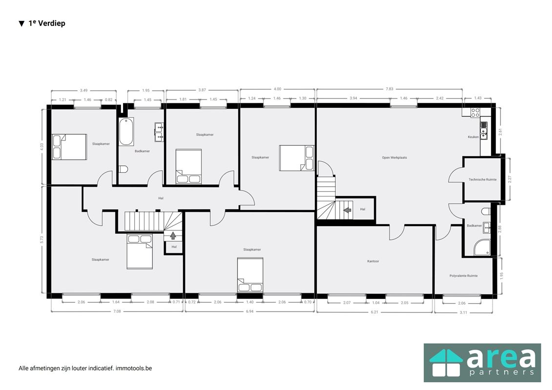
- Eerste verdieping van 240m² opgedeeld in slaapgedeelte en bureelgedeelte. Het slaapgedeelte biedt een nachthal, 5 ruime slaapkamers en 1 badkamer. Het bureelgedeelte (92m²) biedt een open werkplaats met keuken, twee kantoren, een sanitaire ruimte met douche, lavabo en wc en een technische ruimte.
- Groot magazijn van 240m², eventueel uitbreidbaar tot ongeveer 1000m².
Voor meer informatie of een bezoek kan u terecht bij Area Partners via info@area.be of 03/284.60.60.




















































