Deze leuke en ruime eengezinswoning bevindt zich op een autoluwe en kindvriendelijke locatie met voor de deur het Krugerpark, een groene oase met speeltuin. Het betreft een bel-étage waar de garage zeker een grote meerwaarde is! De woning bevindt zich op wandel- en fietsafstand van verschillende leuke adresjes zoals Bar Leon, Frituur Tina maar ook de vrijdagsmarkt op ’t Laar. Met het openbaar vervoer ben je in een oogwenk in het centrum van Antwerpen.
Grootste troeven:
- Gegeerde centrale locatie
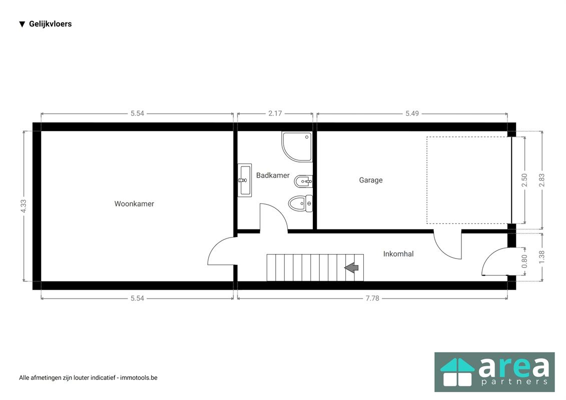
-Handige garage (16m²)
- Zicht op groen/Krugerplein
- Lichtinval
Indeling:
-GLVL: inkomhal met doorgang naar de handige inpandige garage (17m²). Verder komen we de 1ste ingerichte badkamer (7m²) tegen met douche & WC. Achteraan het gelijkvloers bevindt zich nog een leuke polyvalente ruimte (25m²), waar je zelf de functie van kunt aanvullen.
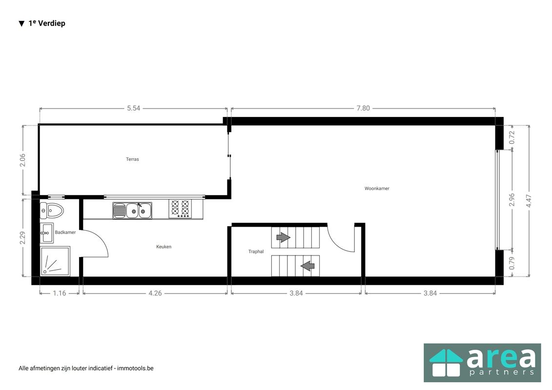
-V1: Ruime en lichte living die naadloos overgaat in de eetkamer (samen 30m²). Aansluitend bevindt zich de gedeeltelijk geïnstalleerde keuken (10m²) met daarachter de 2de ingerichte badkamer (3m²) met douche en WC
-V2: hier bevinden zich 2 ruime slaapkamers (17m² & 12m²).
Voor meer informatie kan u terecht bij Area Partners. INFO@area.be of 03/284.60.60.




































