Deze instapklare en charmante woning is gelegen in een rustige buurt te Deurne. Het betreft een recent vernieuwde confortawoning met 2 slaapkamers en gezellige tuin. Omwille van de centrale ligging heb je alles binnen handbereik: winkels, scholen en het openbaar vervoer, in de nabijheid van verschillende uitvalswegen zoals de Ring van Antwerpen.
Grootste troeven:
-Centrale doch rustige locatie
-Instapklare woning
-Zeer gunstig EPC (B): 167 kWh/m²jaar
-Conforme elektrische keuring
-Leuke oostgerichte tuin (60m²)
Indeling:
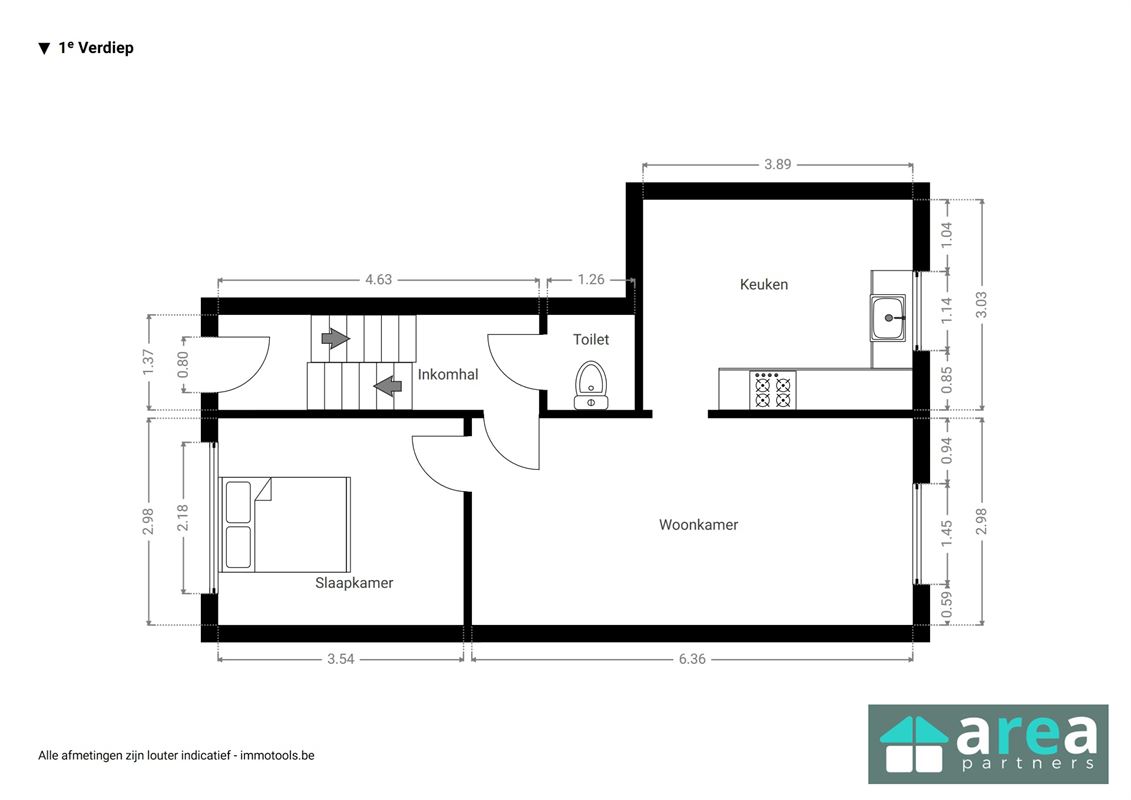
-V1: inkomhal met apart toilet. Aansluitend treffen we de gezellige living (20m²) met daarnaast de geïnstalleerde keuken (13m²) beiden met een parketvloer. Vooraan de woning bevindt zich de 1ste slaapkamer (13m²) met rolluiken.
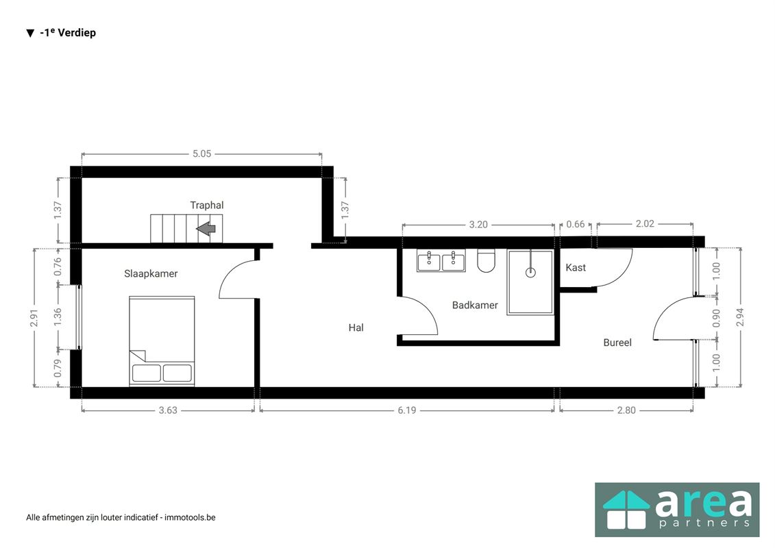
-GLVL: de traphal biedt de nodige stockagemogelijkheden. De gang verbindt de overige ruimtes zoals de ingerichte badkamer met vloerverwarming, douche & WC alsook de 2de slaapkamer (11m²). achteraan bevindt zich de veranda (9m²) momenteel in gebruik als wasplaats. Tot slot is er nog een gezellige oostgerichte tuin met overdekt terras (samen 60m²).
Voor meer informatie kan u terecht bij Area Partners: Info@area.be of 03/284.60.60


































