Dit ruim 2 slaapkamer appartement bevindt zich op de gelijkvloerse verdieping van een kleinschalig gebouw van 3 units.
Het appartement bevindt zich in een rustige straat vlakbij het centrum van Deurne. Binnen een straal van 1km bevinden zich talloze winkels, dokters, scholen en het openbaar vervoer. Wie nood heeft aan groen, kan genieten van het natuurgebied Ertbrugge en gemeentepark Bremweide.
Ideaal om er zelf in te trekken of als investering!
Grootste troeven:
- Lage vaste kosten!
- Gegeerde locatie
- Lichtrijk en instapklaar appartement
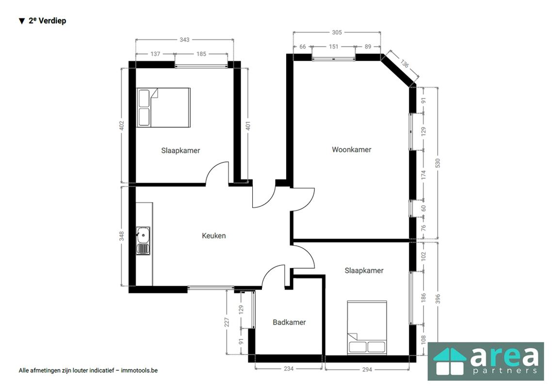
- Totale oppervlakte 87m²
- Conforme elektriciteit!
Indeling:
De keuken (19m²) biedt toegang tot de lichtrijke woonkamer (27m²) enerzijds. Hiernaast bevindt zich de eerste slaapkamer. Anderzijds betreden we hierdoor de 2e slaapkamer en badkamer met ligbad, toilet & lavabo.
Voor meer informatie kan u terecht bij Area Partners. Info@area.be of 03/284.60.60



































