Achter deze prachtige, authentieke gevel, op een boogscheut van het centrum van Antwerpen en het bruisende Eilandje, schuilt een ruime en karaktervolle burgerwoning met verrassend veel mogelijkheden.
Deze instapklare woning beschikt over maar liefst 6 volwaardige slaapkamers, 2 badkamers en een gezellige stadskoer. Dankzij de centrale ligging bevindt u zich vlakbij invalswegen, openbaar vervoer en handelszaken. Zin in wat groen of rust? Dan is Park Spoor Noord vlakbij. Ook liefhebbers van leuke cafés en restaurants zitten hier op de juiste plek, de buurt leeft.
Door de royale ruimtes en flexibele indeling biedt deze woning enorm veel potentieel. De kamers kunnen makkelijk een andere functie krijgen (bureau, hobbyruimte, dressing, …) en maken deze eigendom ook bijzonder interessant voor co-housing of een woning met meerdere bewoners.
Troeven op een rij
- Ruime woning met tal van mogelijkheden (6 slaapkamers)
- Gunstig EPC C: 285 kWh/m²jaar
- Conforme elektrische keuring (geldig tot 2040)
- Authentieke elementen & hoge plafonds
- Planchévloeren
- Slaapkamers met eigen lavabo’s
- Buitenruimte: stadskoer + terras
Indeling
Kelder:
Ruime en praktische kelderruimte van ca. 56 m², ideaal voor stockage.
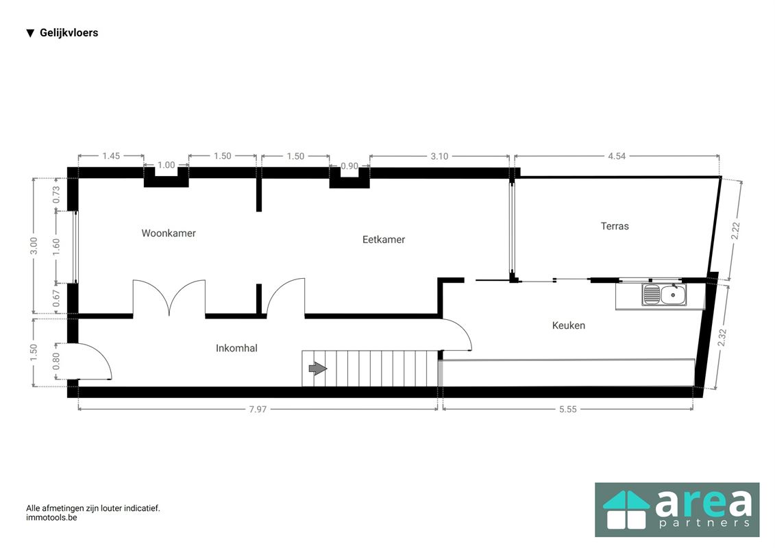
Gelijkvloers:
U komt binnen via een prachtige inkomhal met hoge plafonds en authentieke details. Deze geeft toegang tot een ruime en lichtrijke leefruimte op planché, die naadloos overgaat in de eetkamer (samen ca. 30 m²). Achteraan bevindt zich een volledig geïnstalleerde keuken met doorgang naar de gezellige, onderhoudsvriendelijke stadskoer (ca. 10 m²).
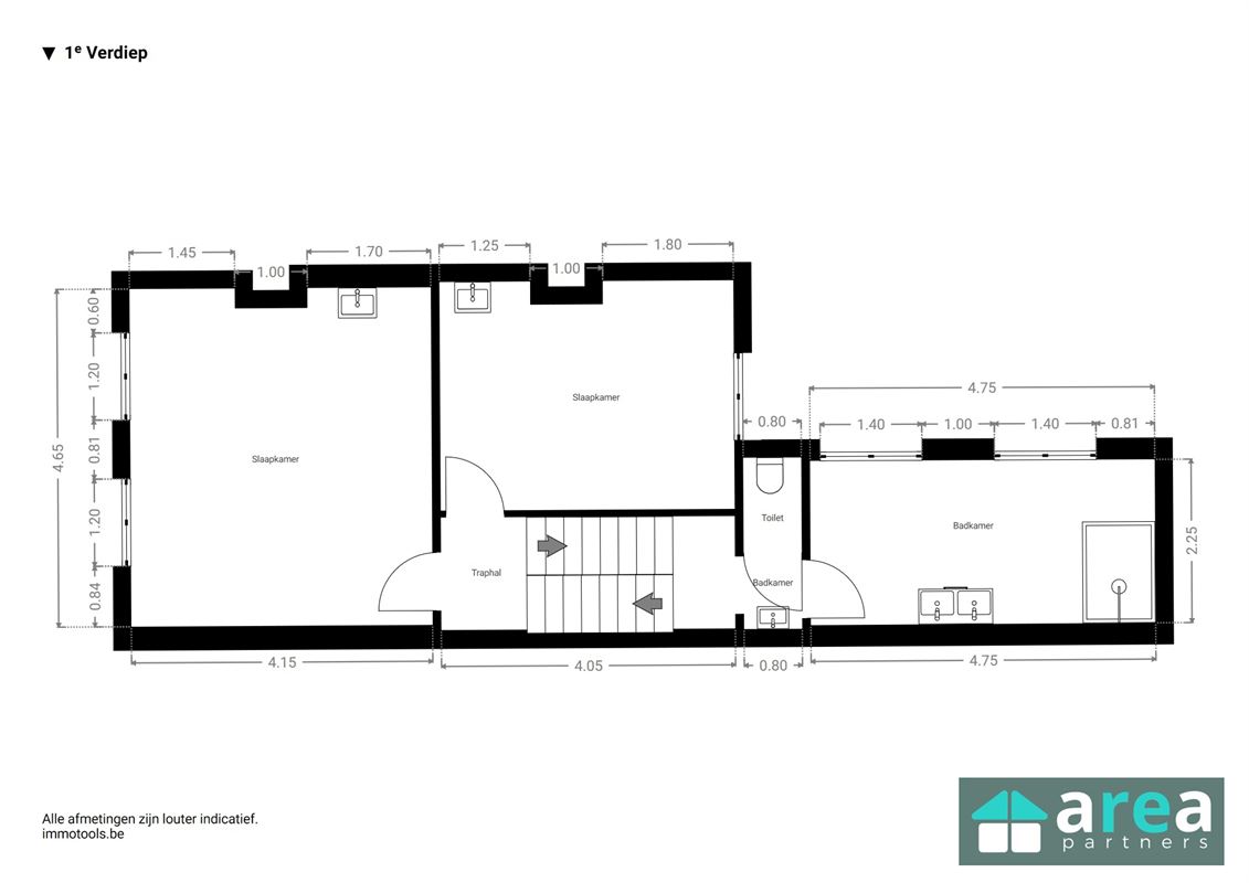
1ste verdieping:
Op het tussenverdiep bevindt zich een apart toilet en een eerste ruime badkamer met inloopdouche (ca. 11 m²). Op de verdieping zelf zijn er 2 ruime slaapkamers (ca. 19 m² en 10 m²).
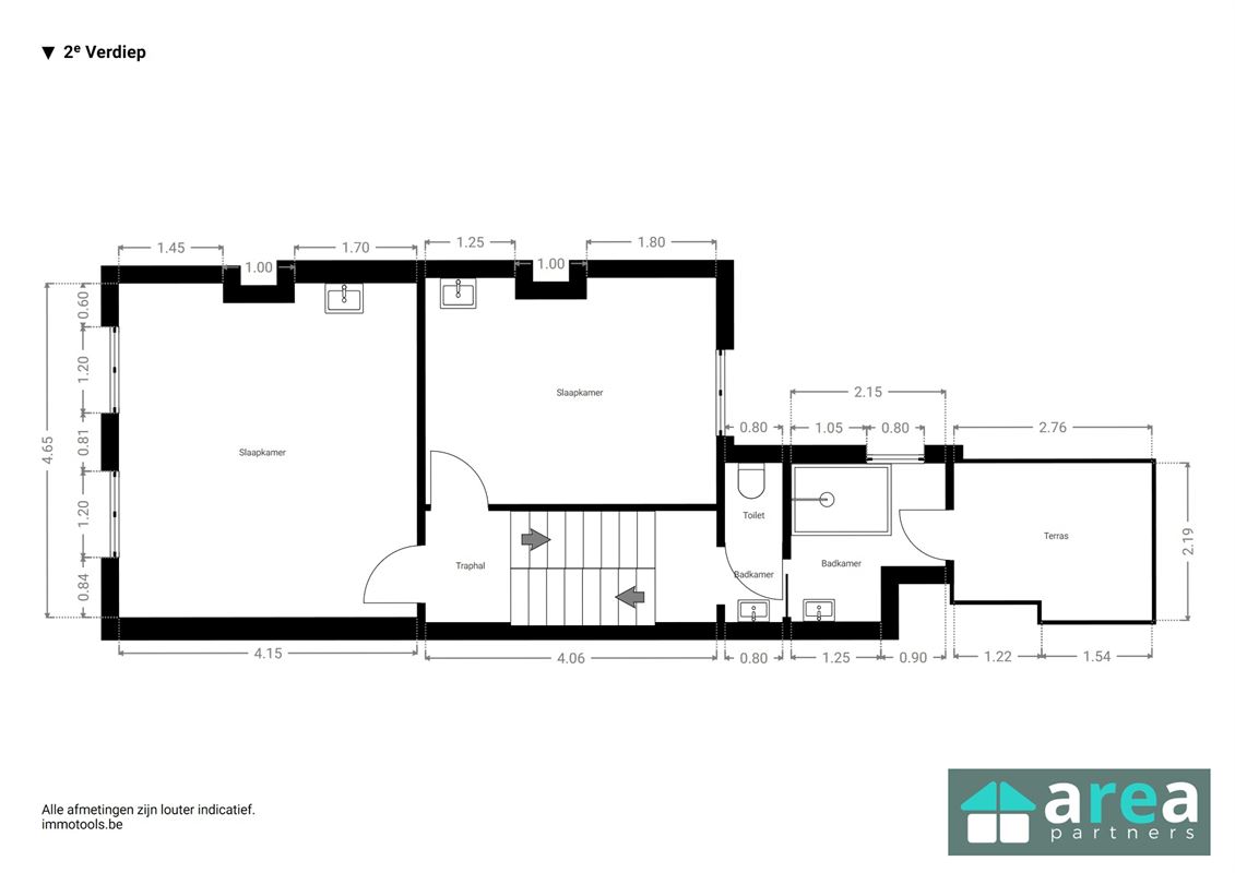
2de verdieping:
Ook hier vindt u op het tussenverdiep een apart toilet en de tweede badkamer met inloopdouche (ca. 11 m²) met aansluitend toegang tot het terras (ca. 5 m²). Op de verdieping bevinden zich opnieuw 2 slaapkamers (ca. 19 m² en 10 m²).
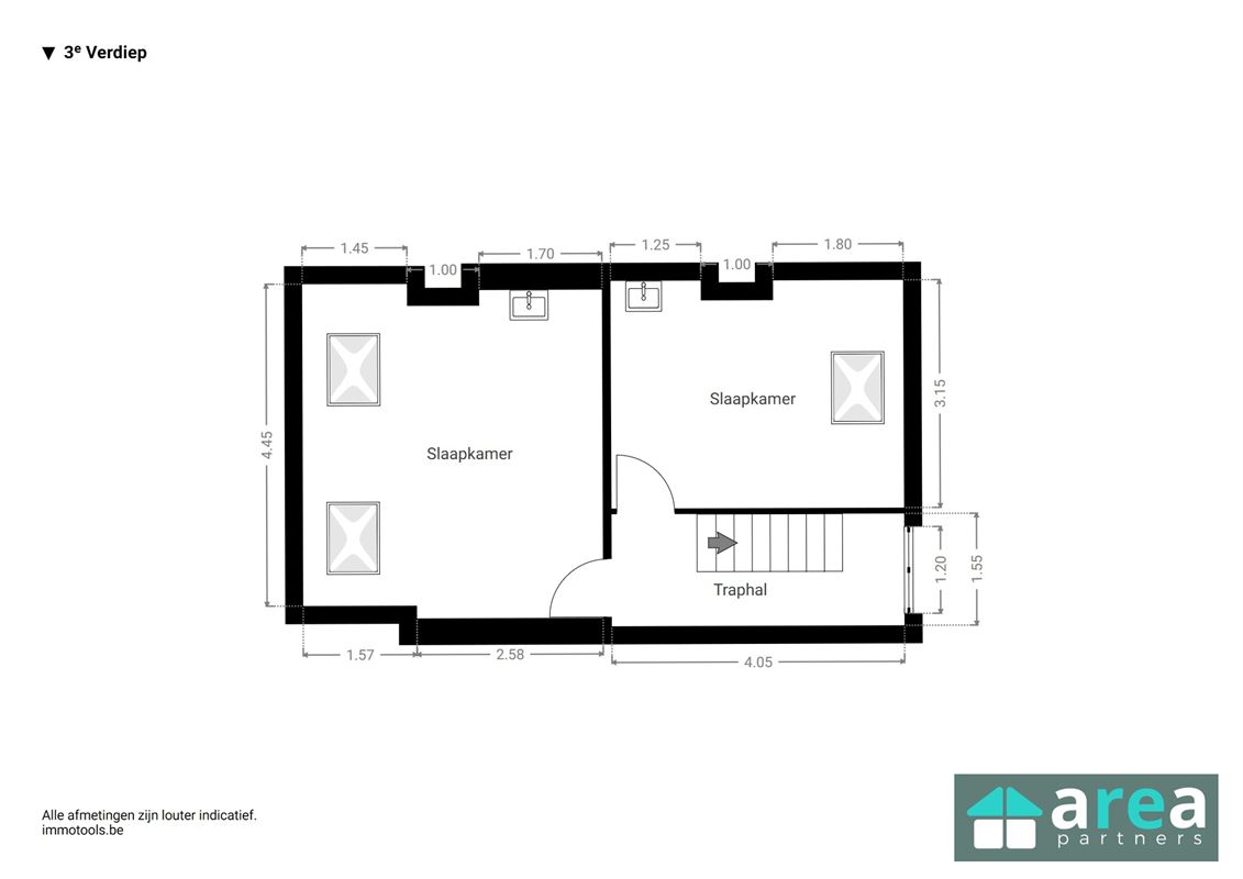
3de verdieping:
Bovenaan zijn de laatste 2 slaapkamers voorzien (ca. 18 m² en 13 m²) onder het schuine dak. De kleinere kamer geniet bovendien van een leuke mezzanine.
Voor meer informatie of een bezoek kan u terecht bij Area Partners via info@area.be of 03/284.60.60.















































