Dit 2 slaapkamer appartement bevindt zich op de grens tussen Borgerhout en Deurne op wandelafstand van Het Rivierenhof. Gelegen op de eerste verdieping van een goed onderhouden gebouw. Hier geniet u van een prachtig groen zicht op het park. Het is gemakkelijk bereikbaar via het openbaar vervoer (bus- en tramhalte aan de overkant) en de autosnelweg is op nog geen 5 minuten verwijderd. In de nabije omgeving vindt u verschillende winkels, scholen, dokters en ziekenhuizen.
Ideaal voor starters of als een veilige investering. Het appartement is momenteel verhuurd.
Grootste troeven:
- Groot terras (15m²)
- Fietsenstalling aanwezig
- Centrale locatie
- Groen zicht op het park
- 1 kelder inbegrepen
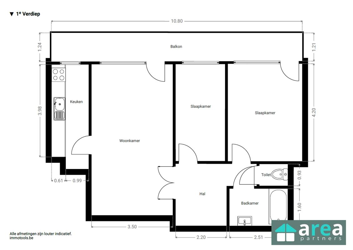
Indeling: Inkomhal met ingemaakte kasten met aansluitend de lichtrijke lichte living (25m²). Hiernaast bevindt zich de deels geïnstalleerde keuken (8m²). Zowel living als slaapkamer bieden doorgang tot het zuidoost gericht terras (15m²). De nachthal geeft toegang tot het apart toilet, de ingerichte badkamer (5m²) met douche, alsook de 2 slaapkamers (14m² & 10m²). Tevens is er een kelderberging aanwezig.
Voor meer informatie kan u terecht bij Area Partners. INFO@area.be of 03/284.60.60





























