Achter deze prachtige en authentieke gevel in de hippe BOHO wijk schuilt een ruime en karaktervolle burgerwoning. Het betreft een instapklare woning met liefst 8 mogelijke slaapkamers, 2 badkamers en een gezellige stadskoer. Deze eigendom situeert zich vlakbij enkele invalswegen, openbaar vervoer en handelszaken. Geniet van rust in één van de nabijgelegen parken zoals het Rivierenhof en het Park Spoor Oost/Noord.
Omwille van de ruimtes biedt het pand uitermate veel mogelijkheden en potentieel!
De ruimtes zijn vrij aan te vullen qua functie en dus ideaal als een co-housing project!
Grootste troeven:
- Ruime woning met vele mogelijkheden
- 8 (slaap)kamers met aan te vullen functies
- 2 badkamers, 3 toiletten
- Ideaal voor co-housing!
Indeling:
-Kelder: ruim en handige kelderruimte (38m²).
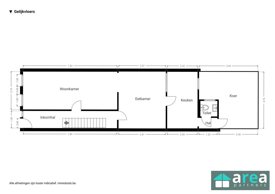
-GLVL: Ruime en lichte living (26m²) die naadloos overgaat in de eetkamer (19m²). Aansluitend bevindt zich de volledig geïnstalleerde keuken (13m²). De eetkamer & keuken genieten beide van 2 lichtkoepels, die zorgen voor genoeg natuurlijk daglicht. Verder is er nog een apart gastentoilet alsook de toegang tot de gezellige en onderhoudsvriendelijke stadskoer (22m²).
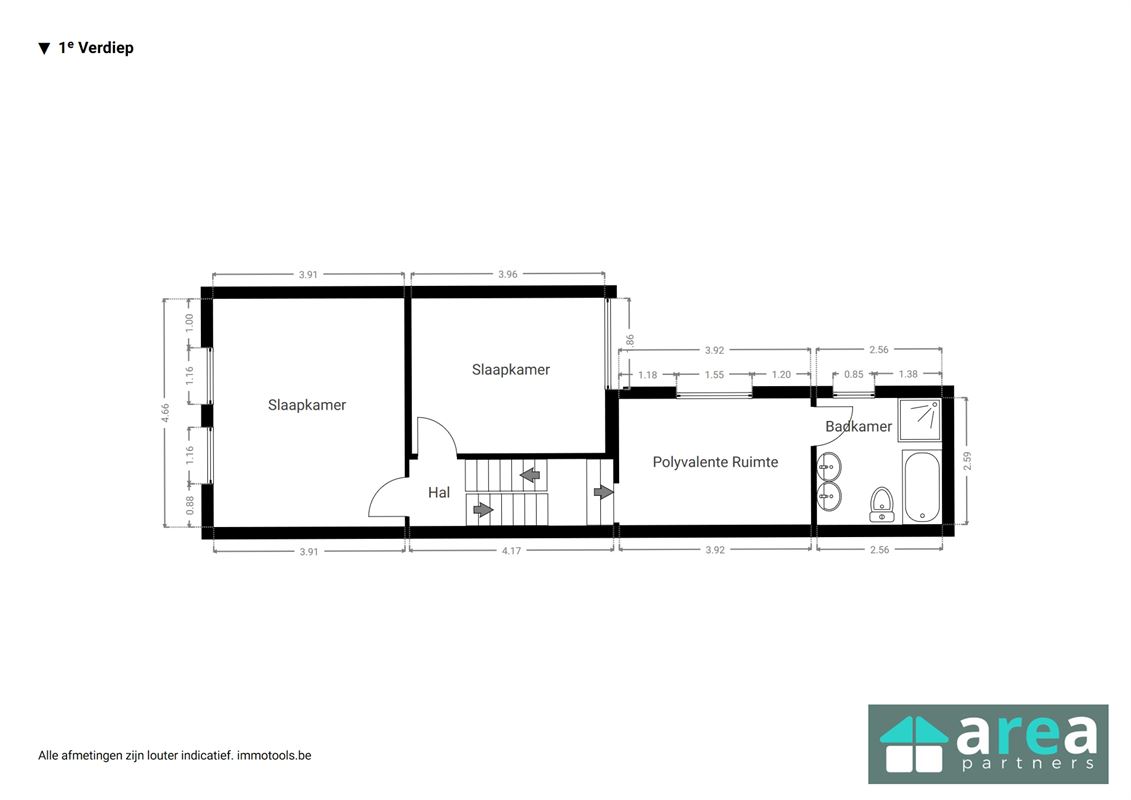
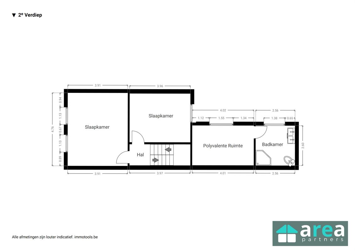
-V1 & V2: op het 1ste en 2de verdiep bevinden zich telkens 2 ruime slaapkamers (19m² & 13m²). Op het 1ste en 2de tussenverdiep bevindt zich telkens een kamer (slaapkamer, bureau of hobbykamer van elk 10m²) met aansluitend een ingerichte badkamer (elk 7m²) met douche en ligbad.
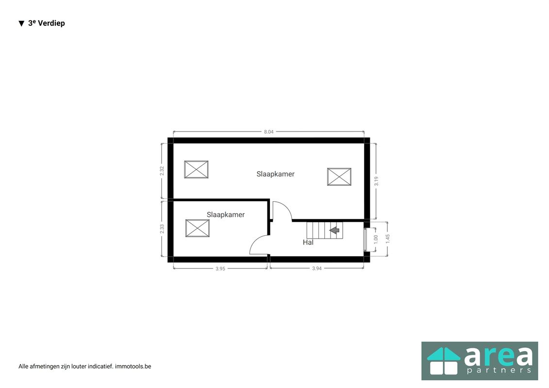
-V3: een grote kamer (22m²) met aansluitend een 2de kamer (10m²) die als slaapkamer, bureau of dressing kan dienen.
Voor meer informatie kan u terecht bij Area Partners: INFO@area.be of 03/284.60.60












































