In een rustige straat in Deurne vinden we deze leuke gezinswoning terug. Het betreft een ruime woning met 3 (mogelijks 4) slaapkamers, 2 badkamers en een gezellige veranda die uitkijkt op de zonnige, zuidoostgerichte tuin. Gelegen in een vlot bereikbare buurt, op wandelafstand van winkels, scholen, openbaar vervoer en het groene Rivierenhof. Dankzij de nabijheid van de Ring geniet u bovendien van een uitstekende verbinding met Antwerpen-centrum en de omliggende gemeenten.
Kortom, een ruime woning met veel potentieel: een ideale kans om de woning verder af te werken naar eigen smaak & benodigdheden!
Grootste troeven:
-Centrale locatie
-Veranda + zonnige tuin
-Zéér gunstig EPC B: 156kWh/m² jaar (geïsoleerd dak + achtergevel)
-Conforme EK
-Veel potentieel na afwerking
Indeling:
-Kelder: ruime & droge kelder (75m²)
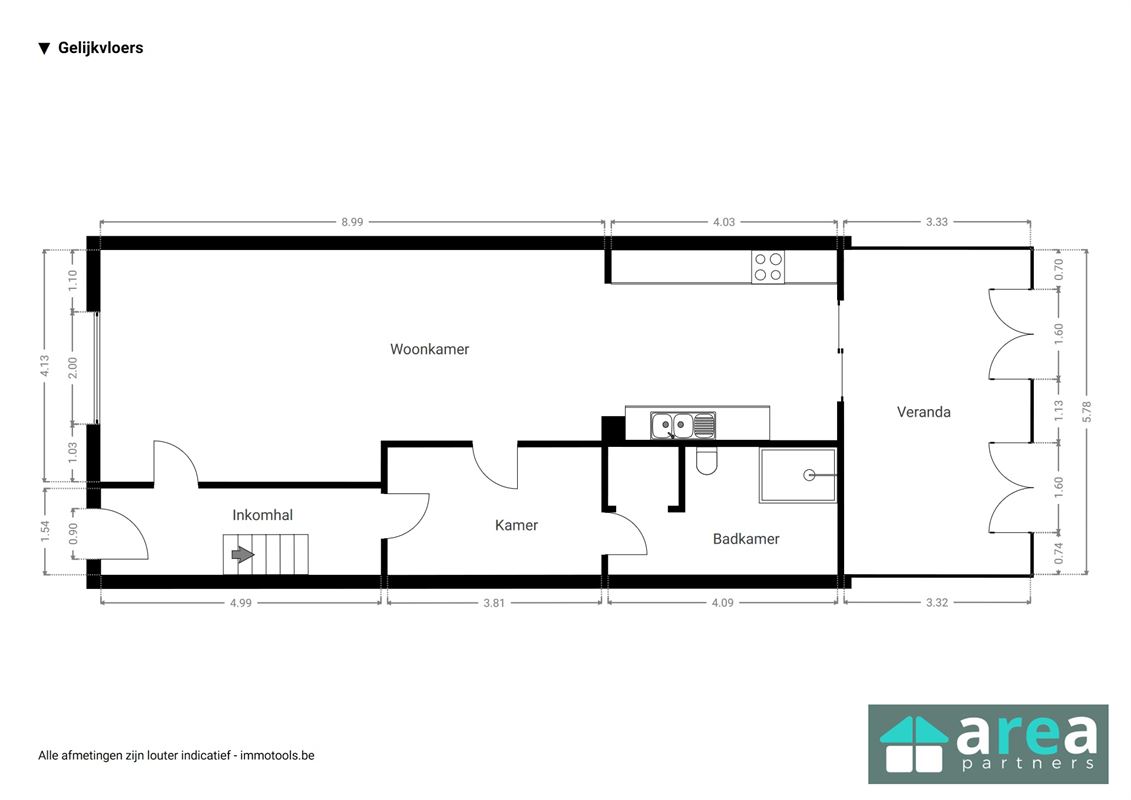
-GLVL: De ruime en lichte living (35m²) loopt naadloos over in de gedeeltelijk geïnstalleerde keuken (14m²). Via de keuken bereik je de gezellige veranda (20m²), die uitkijkt op de grote, zonnige zuidoostgerichte tuin (115m²). Vanuit de living komen we in de tussenkamer (9m²), ideaal als wasplaats of bergruimte, met toegang tot de badkamer (10m²) met douche & WC.
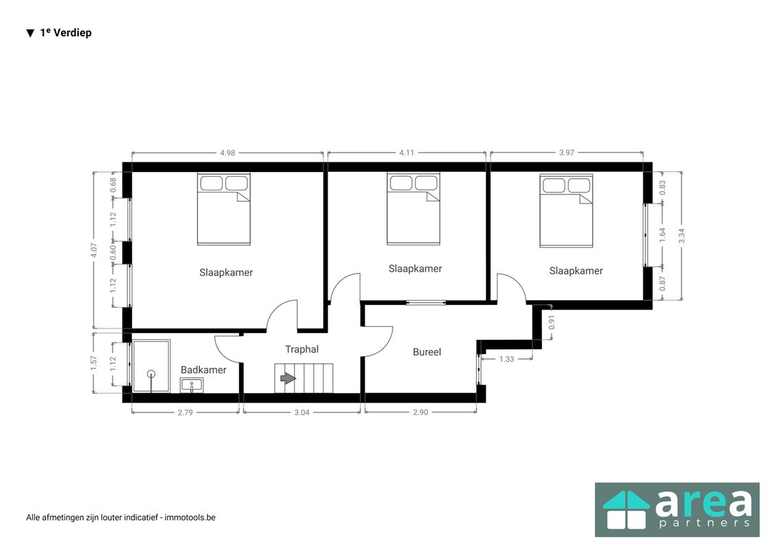
-V1: De nachthal verbindt verschillende ruimtes zoals o.a. aan voorzijde de masterbedroom (21m²) met daarnaast de 2de badkamer (5m²) met douche en WC alsook de 2de ruime slaapkamer (14m²). Achteraan treffen we de 3de slaapkamer (13 m²), bereikbaar via de tussenkamer (7m²), ideaal als bureau of doorloopslaapkamer.
Voor meer informatie kan u terecht bij Area Partners: INFO@area.be of 03/284.60.60











































